Casa singola con dependance e ampi spazi a Mira (VE)
€ 298.000
Venezia
Dettagli
Contratto Vendita
Rif 80.956
Prezzo € 298.000
Provincia Venezia
Comune Mira
Indirizzo Piazza Vecchia 17">
Vani 13
Camere 6
Bagni 2
Classe energetica
G (DL 192/2005)
EPI 175 kwh/m2 anno
Condizioni da ristrutturare
Anno di costruzione 1900
Cucina abitabile
Consistenze
| Descrizione | Superficie | Sup. comm. |
|---|---|---|
| Principali | ||
| Immobile - piano terra | 230 Mq | 230 Mqc |
| Box/Garage - piano terra | 120 Mq | 60 Mqc |
| Totale | 290 Mqc | |
In una posizione centralissima di Mira, proponiamo in vendita una casa singola su due piani di 230mq da ristrutturare, di ampie dimensioni con dependance, ideale per chi desidera vivere in spazi generosi e indipendenti, circondati dalla quiete della campagna veneziana.
Al piano terra troviamo un'ampia zona giorno con soggiorno, salotto, sala da pranzo e cucina, oltre a ingresso e disimpegni ben distribuiti. Il piano superiore ospita quattro camere spaziose e due bagni, garantendo comfort e privacy per tutta la famiglia.
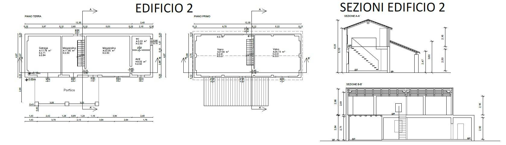
A completare la proprietà, un secondo fabbricato indipendente su due livelli di 120mq, composto da garage, magazzino e ampio vano al piano superiore, perfetto come studio, laboratorio o dependance per ospiti.
Gli edifici si presentano luminosi e funzionali, con ampie altezze interne e ambienti facilmente personalizzabili secondo le proprie esigenze.
La proprietà offre inoltre spazio esterno privato e ottima accessibilità alle principali vie di collegamento verso Venezia, Padova e Chioggia.
Ideale per chi cerca una soluzione indipendente, versatile e con potenziale abitativo o professionale.
Al piano terra troviamo un'ampia zona giorno con soggiorno, salotto, sala da pranzo e cucina, oltre a ingresso e disimpegni ben distribuiti. Il piano superiore ospita quattro camere spaziose e due bagni, garantendo comfort e privacy per tutta la famiglia.
A completare la proprietà, un secondo fabbricato indipendente su due livelli di 120mq, composto da garage, magazzino e ampio vano al piano superiore, perfetto come studio, laboratorio o dependance per ospiti.
Gli edifici si presentano luminosi e funzionali, con ampie altezze interne e ambienti facilmente personalizzabili secondo le proprie esigenze.
La proprietà offre inoltre spazio esterno privato e ottima accessibilità alle principali vie di collegamento verso Venezia, Padova e Chioggia.
Ideale per chi cerca una soluzione indipendente, versatile e con potenziale abitativo o professionale.
Video
Richiedi maggiori informazioni
Contattaci
Finalmente Casa Spinea Dolo Mestre
Piazza Marconi, 29 30038 SPINEA (VE)
Piazza Marconi, 29 30038 SPINEA (VE)
P.IVA: 04581550276
0415413138





