Introvabile casa indipendente con ampi spazi
€ 240.000
Pianiga, Venezia
Dettagli
Contratto Vendita
Rif IMMO-123904067
Prezzo € 240.000
Provincia Venezia
Comune Pianiga
Indirizzo Via Provinciale Sud">
Vani 5
Camere 3
Bagni 1
Classe energetica
G (DL 192/2005)
EPI 175 kwh/m2 anno
Condizioni da ristrutturare
Anno di costruzione 1967
Cucina abitabile
Consistenze
| Descrizione | Superficie | Sup. comm. |
|---|---|---|
| Principali | ||
| Immobile - piano terra | 122 Mq | 122 Mqc |
| Immobile - 1° piano | 79 Mq | 79 Mqc |
| Totale | 201 Mqc | |
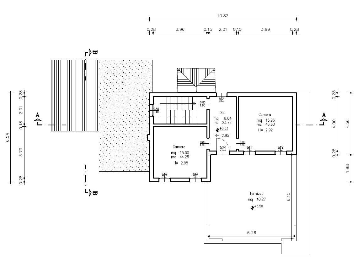
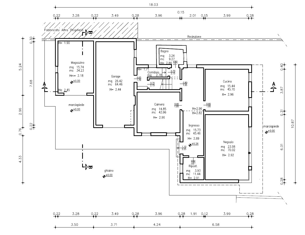
A Cazzago di Pianiga (VE), proponiamo casa singola di 200 mq circondata dal verde, ideale per una o due famiglie, in posizione tranquilla ma strategica - comoda ai collegamenti con Venezia e Padova. Esiste già un progetto approvato per la ristrutturazione.
All'interno trovi ambienti luminosi e ben distribuiti:
All'interno si trovano spazi luminosi e ben organizzati: un ampio soggiorno con cucina a vista, tre camere matrimoniali e un bagno finestrato.
All'esterno, la casa offre una terrazza abitabile con solarium, un garage doppio e un grande giardino privato di circa 1.000 mq, perfetto per vivere la tranquillità del verde in totale privacy.
La generosità degli spazi, sia interni che esterni, rende questa abitazione ideale per chi desidera libertà, indipendenza e contatto con la natura, senza rinunciare alla comodità dei servizi vicini.
All'interno trovi ambienti luminosi e ben distribuiti:
All'interno si trovano spazi luminosi e ben organizzati: un ampio soggiorno con cucina a vista, tre camere matrimoniali e un bagno finestrato.
All'esterno, la casa offre una terrazza abitabile con solarium, un garage doppio e un grande giardino privato di circa 1.000 mq, perfetto per vivere la tranquillità del verde in totale privacy.
La generosità degli spazi, sia interni che esterni, rende questa abitazione ideale per chi desidera libertà, indipendenza e contatto con la natura, senza rinunciare alla comodità dei servizi vicini.
Richiedi maggiori informazioni
Contattaci
Finalmente Casa Spinea Dolo Mestre
Piazza Marconi, 29 30038 SPINEA (VE)
Piazza Marconi, 29 30038 SPINEA (VE)
P.IVA: 04581550276
0415413138





